【売買専門】福岡市南区にある仲介手数料無料の不動産|すみれ不動産 > ホワイトキャッスル城南☆仲介手数料無料☆

ホワイトキャッスル城南☆仲介手数料無料☆

お問い合わせ24時間受付中

ほかの仲介手数料無料物件はこちら

無料 今すぐ条件を伝える

ホワイトキャッスル城南☆仲介手数料無料☆

価格1,998万円

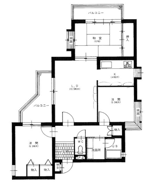
5階/ 3LDK/ 71.96㎡

福岡県福岡市城南区茶山6丁目16-65
茶山駅徒歩9分

この物件の仲介手数料に関して

仲介手数料法定上限額(物件本体価格の3.3%+6.6万円)の725,340円が、当社でご契約いただくと無料です!!

担当者コメント

担当者画像

平井詩織

【お電話】 092-406-6497

~24時間いつでも内覧予約受付中~
 ◎レスポンス遅いと困る◎
 ◎当日・夜間に内覧したい◎
 ◎住宅ローン・通るか不安◎
◎物件探し・まず何からすればいい?◎
小さなことからなんでも・いつでも♪

〇階段を上がって5階のお部屋です♪

〇新耐震基準・住宅ローン控除利用可♪

〇小・中学校まで徒歩10分以内で安心♪

【教育】
◆城南小学校:徒歩5分
◆城南中学校:徒歩7分

【暮らし】
◆サニー茶山店:徒歩7分
◆セブンイレブン 福岡別府7丁目店:徒歩9分
◆福岡荒江郵便局:徒歩11分

基本情報

情報の見方

所在地 福岡県福岡市城南区茶山6丁目16-65
交通
  • 福岡市七隈線茶山」駅 徒歩9分
  • 福岡市七隈線金山」駅 徒歩14分
  • 福岡市七隈線別府」駅 徒歩18分
  • 間取り / 詳細 3LDK/
    専有面積 71.96㎡
    バルコニー面積 11.38㎡
    その他面積 - / - / -
    価格 1,998万円
    管理費 4,317円
    修繕積立金 8,635円
    修繕積立基金 -
    権利金 -
    駐車場 / 月額料金 空無 / 10,000円 空有 10000円|
    土地権利 所有権
    土地(敷金/保証金) - / -
    借地料 / 借地期間 - / -
    向き 南西
    所在階 / 階建て 5階 / 5階建
    建物構造 鉄筋コンクリート
    築年月(築年数) 1988年 7月 ( 築37年 )
    種別 中古マンション
    国土法届出要否 不要
    接道状況 -
    用途地域 第一種中高層住居専用
    地勢 -
    都市計画 市街化区域
    現況 空家
    引渡し 即時
    リフォーム 2024年3月 / キッチン 浴室 トイレ 壁 床 全室
    取扱会社
    • すみれ不動産株式会社
    • 福岡県福岡市南区高宮2丁目3-4 大産高宮ビル 502
    • TEL:092-406-6497
    • 福岡県知事 (1) 第19870号
      行政書士
    • (公社)福岡県宅地建物取引業協会(ふれんず)
      (公社)福岡県宅地建物取引業保証協会
      (一社)木造住宅耐震普及協会 
    取引態様 一般媒介
    棟総戸数/販売戸数 30戸/-
    管理形態 管理会社に全部委託
    管理員の勤務形態 巡回
    管理会社 /
    管理組合有無
    日本エスエム株式会社 /
    取引条件の
    有効期限
    2025年11月19日

    その他の情報

    物件番号 85027245
    管理コード -
    建築確認番号 -
    情報更新日 2025年11月05日
    次回更新予定日 2025年11月19日
    備考

    物件の特徴

    • free
    その他の情報
    キッチンシステムキッチン
    バス・トイレ温水洗浄便座
    セキュリティTVモニタ付インターホン
    その他陽当り良好、閑静な住宅地、眺望良好、オープンハウス、仲介手数料無料、リフォーム済

    現地案内会

    日時 2024年10月12日 ~ 2024年11月12日     09:30 ~ 19:30
    • ※事前に必ず予約してください
    • ●イベント情報●

      【まずは物件が見たい!】
      ■お電話・メールでお気軽にお問合せください。
       1.【お電話】 092-406-6497
       2.【メール】「資料請求」「問い合わせ」ボタンよりお進みください。

      ■ご希望日時とお待ち合わせ方法をご指定ください。
       1.ご来店
       2.ご自宅送迎
       3.現地・最寄駅等でのお待ち合わせ。

      【気軽に相談から♪】
      ■『失敗しない住まい選びのポイント!』、『購入の流れや住宅ローン等のお金について』、
        『購入後に気を付けることって何?』などあらゆるご質問にお答えします。

      【その他】
      ■詳しくは、当社スタッフにお問合せください。

    周辺地図

    ※地図上に表示される物件の位置は付近住所に所在することを表すものであり、実際の物件所在地とは異なる場合がございます。

    地図で開く

    支払いシミュレーション

    月々の支払額
    9.6
    返済期間
    金利
    %

    ※元利均等方式 金利5.00%まで

    ボーナス
    万円

    ※ボーナスは自動で年2回分で計算されます。

    借入金額
    万円
    頭金
    万円

    トップへ戻る